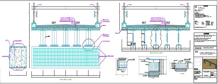
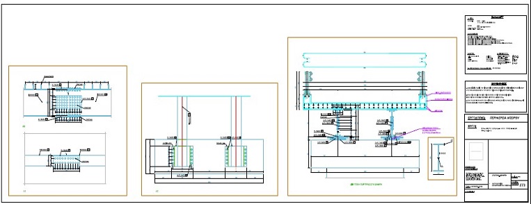
Στατική μελέτη σύμμικτης γέφυρας στο Μεσογέφυρο Μολυβδοσκεπάστου
Στατική μελέτη σύμμικτης γέφυρας ενός ανοίγματος συνολικού μήκους 30,9 μέτρα, στη περιοχή Μεσογέφυρου, Μολυβδοσκεπάστου, Ν. Ιωαννίνων
Εργοδότης: Περιφέρεια Ηπείρου
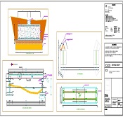
Στατική μελέτη σύμμικτης γέφυρας στη Μερόπη Πωγωνίου
Στατική μελέτη σύμμικτης γέφυρας ενός ανοίγματος συνολικού μήκους 21,4 μέτρα, στη Μερόπη Ζαγορίου, Ν. Ιωαννίνων
Εργοδότης: Περιφέρεια Ηπείρου
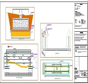
Στατική μελέτη σύμμικτης γέφυρας στο Καβαλάρι Ζαγορίου
Στατική μελέτη σύμμικτης γέφυρας ενός ανοίγματος συνολικού μήκους 21,4 μέτρα, στο Καβαλάρι Ζαγορίου, Ν. Ιωαννίνων
Εργοδότης: Περιφέρεια Ηπείρου
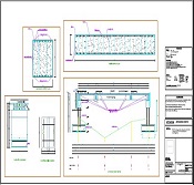
Στατική μελέτη σύμμικτης γεφυρας στο Λοφίσκο Γραμμένου
Στατική μελέτη σύμμικτης γέφυρας τριών ανοιγμάτων συνολικού μήκους 31,55 μέτρα, με τραπεζοειδές χαλυβδόφυλλο, στο Λοφίσκο, Γραμμέννου, Ν. Ιωαννίνων
Εργοδότης:Περιφέρεια Ηπείρου
Στατική μελέτη σύμμικτης γέφυρας στο Γαρδίκι Φιλιατών
Στατική μελέτη σύμμικτης γέφυρας ενός ανοίγματος, συνολικού μήκους 27,4 μέτρα, στο Γαρδίκι Φιλιατών Ν.Θεσπρωτίας
Εργοδότης:Περιφέρεια Ηπείρου
Στατική μελέτη σύμμικτης γέφυρας Λάλιζα - Σενίκο
Μελέτη σύμμικτης γέφυρας δυο ανοιγμάτων, συνολικού μήκους 55,3 μέτρα, που ενώνει τους οικισμούς Λάλιζα - Σενίκο Ν.Ιωαννίνων
Εργοδότης:Περιφέρεια Ηπείρου
Προσθήκη - Επέκταση με σύμμικτη κατασκευή
Μελέτη - κατασκευή 720 τ.μ. στο Άγιον Όρος
Ιδιοκτήτης: Ιερά Καλύβη Αγίων Αρχαγγέλων , Ιερά Σκήτη Αγίου Παντελεήμονος , Ιερά Μονή Κουτλουμουσίου
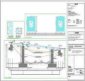
Στατική μελέτη παγοδρομίου
Παγοδρόμιο 800 τ.μ. με κολώνες μεταβλητής διατομής στο Μέτσοβο Ιωαννίνων
Ιδιοκτήτης:Περιφέρεια Ηπείρου
Μεταλλικός σταυρός
Μεταλλικός σταυρός ύψους 13μ. πλάτους 9μ.
Ιδιοκτήτης: Κοινότητα Χρυσοβίτσας Ιωαννίνων
Στατική μελέτη σύμμικτης κατοικίας
Στατική μελέτη σύμμικτης κατοικίας 150 τ.μ. στον Κατσικά Ιωαννίνων
Εργολάβος: Ιωακείμ Χριστοφορίδης
Στατική Μελέτη γηπέδου μπάσκετ
Στατική μελέτη γηπέδου μπάσκετ 830 τ.μ. στην Ελεούσα Ιωαννίνων
Ιδιοκτήτης: Δήμος Ζίτσας
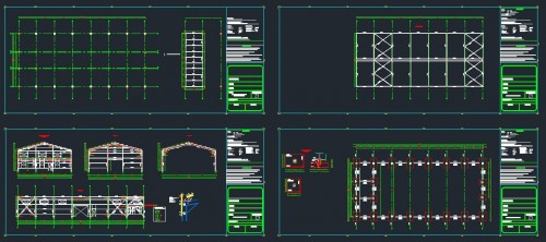
Αρχιτεκτονική και Στατική μελέτη βιομηχανικού κτιρίου
Αρχιτεκτονική και Στατική μελέτη βιομηχανικού κτιρίου 150 τ.μ. στην Κέρκυρα
Ιδιοκτήτης: Μπόικος Ματθαίος
Γυάλινο Γλυπτό με Μεταλλικό Σκελετό στην Παραλία της Θεσσαλονίκης
Στατική Μελέτη
Ιδιοκτήτης : Δήμος Θεσσαλονίκης
Στατική Μελέτη Στεγών Γαλακτοκομικής Σχολής Ιωαννίνων
Στατική Μελέτη Ξύλινων Στεγών 5.600 τ.μ.
Ιδιοκτήτης: Περιφέρεια Ηπείρου
ΣΥΜΜΙΚΤΕΣ ΠΟΛΥΤΕΛΕΙΣ ΚΑΤΟΙΚΙΕΣ
250 τ.μ. στην Κέρκυρα
Αρχιτέκτων : Βλάχου Σοφία
ΒΑΚΑΡΟΣ - ΑΝΤΑΛΛΑΚΤΙΚΑ
210 τ.μ. Ελεούσα Ιωαννίνων
Φροντιστήριο ξένων γλωσσών
Μελέτη προσθήκης καθ ' ύψος 380 τ.μ. , οδός Γραμπάλας και Κάτσαρη, Ιωάννινα, πάνω από τα PC EXPERT
Ιδιοκτήτης: Μπούτζας Γεώργιος
Μελέτη - επίβλεψη 462 τ.μ. κατοικίες
στο Νεοχωρόπουλο Ιωαννίνων - Ιδιοκτήτης: ΗΠΕΙΡΟΚΑΤ Α.Ε.
Ράμπα εκφόρτωσης απορριματοφόρων
Ιδιοκτήτης: SPIDER A.E.
Στατική μελέτη ελαιοτριβείο
280 τ.μ. στην Κέρκυρα
Ιδιοκτήτης: Μεταξά Αγγελική
Στατική μελέτη AVIN
totem ύψους 16 m
Ιδιοκτήτης: AVIN
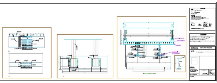
Στατική μελέτη σιδηρουργείο_Ηγουμενίτσα
606 τ.μ. με γερανογέφυρα 5 tn & πατάρι,
Ιδιοκτήτης: Ρίζος Ιωάννης_Ηγουμενίτσα
Στατική μελέτη 2000 τ.μ. χοιροστάσιο_ Ν. Άρτας
Ιδιοκτήτης: Ρέντζος Αθανάσιος - Κοσμάς Γεώργιος
Στατική Μελέτη & κατασκευή στέγαστρο
Δ.Δ. Βοχαϊκού Κορινθίας
ΙΔΙΟΚΤΗΤΗΣ
Κολιόπουλος Α.
ΠΕΡΙΓΡΑΦΗ
Στατική Μελέτη & κατασκευή στέγαστρο Δ.Δ. Βοχαϊκού Κορινθίας
(Ιδιοκτήτης Κολιόπουλος Α.)